Sycamore teacher ‘known for her positivity, love of life’ dies after 2-year cancer battle
A Sycamore special education teacher who "had an incredible ability to make others feel valued and cared for," has died after her fight with cancer, School District 427 interim superintendent Nick Reineck announced Monday.
560-acre data center proposed in DeKalb
A petitioner for an unknown company wants to build a major data center on 560 acres in DeKalb just south of another 500-acre data center campus owned by Meta
‘It’s going to take a village to save a village:’ DeKalb north side residents talk concerns with local leaders
Multiple residents of University Village on DeKalb's north side made some concerns regarding quality of living, youth activities and engagement known to city leaders in a public meeting this weekend. "It’s going to take a village to save a village," resident Demetrius Page said.
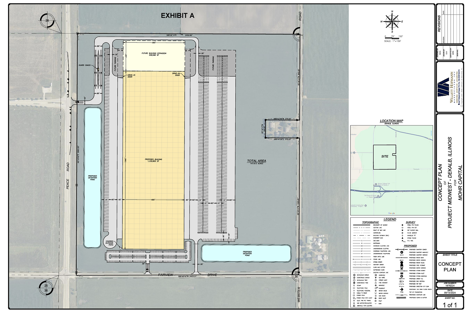
‘Project Midwest’ gains support from DeKalb panel for major warehouse on 147 acres
As work gets underway on the site of an estimated 1-million-square-foot warehouse and distribution facility off Peace Road and Fairview Drive, a DeKalb panel threw its unanimous support behind an unknown manufacturer’s plans.
Daily Chronicle 2025 boys wrestling preview: 5 wrestlers to watch
The reigning wrestler, a former freshman phenom looking for a stronger sophomore campaign and a potential new freshman standout highlight five wrestlers to keep an eye on this season.